Tarnów, ul.Mickiewicza 17/9
tel. 14 627 22 55, fax. 14 627 47 74

biuro@bochenek.com.pl
 

Mieszkania

Budynki

Lokale

Grunty

Nasze usługi







Newsletter


Typ   Nr   Woj   Miasto   Cena  

Oferta Nr 2116 Liczba odsłon: 104818

Wyślij zapytanie.                    


    Miejscowość : Pogórska Wola
    Gmina : Skrzyszów
    Powiat : Tarnowski
    Województwo : małopolskie
    Transakcja : Sprzedaż
    Cena : 3 790 PLN
    Uwagi : Przewidziane trzy pokoje i salon ale istnieje możliwość zmiany liczby pomieszczeń na odpowiednim etapie powstawania budynku lub połączenia apartamentów w obrębie jednego segmentu.
 

Szczegóły

  • Rodzaj mieszkania : 3 pokojowe
  • Stan : Stan deweloperski
  • Typ budynku : Dom mieszkalny
  • Rok budowy : 2020
  • Budulec : ceramika
  • Ilość pięter : 1
  • Piętro : Parter
  • Dach : blacha
  • Winda : Nie
  • Balkon : Tak
  • Garaż : brak
  • Parking : tak
  • Media : Prąd, Woda, Gaz, Wodociąg, Kanalizacja, Ogrzewanie
  • Umeblowanie : Nieumeblowane
  • Powierzchnia całkowita : 91 m2
  • Powierzchnia pokoi : około 11 m/kw
  • Powierzchnia łazienki : 6.5 m2
  • Powierzchnia przedpokoju : 4 m2
  • Podłogi : panele. płytki
  • Opis kuchni : bez umeblowania
  • Opis łazienki : bez wyposażenia

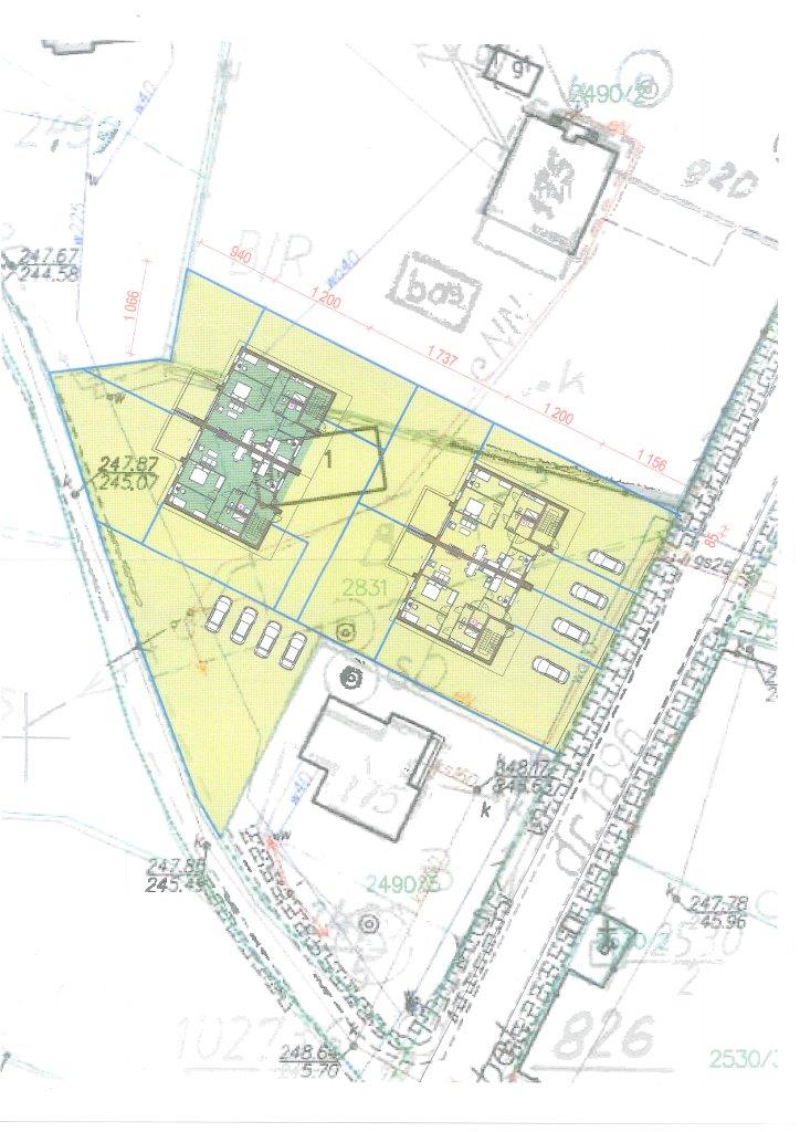
Nowo powstające dwa budynki mieszkalne w zabudowie bliżniaczej na 20 arowej działce.
Każdy segment składa się z 2 apartamentów , każdy o powierzchni 91 m / kw oraz poddasza o powierzchni 70 m/kw. Każdy lokal posiada taras i przynależy ogródek oraz miejsce postojowe, wliczone w cenę metra kwadratowego lokalu. Apartamenty można połączyć w jedno mieszkanie , lub połączyć tylko piętro z poddaszem, schodami spiralnymi. Na odpowiednim etapie budowy można zmienić przewidywaną liczbę pomieszczeń w danym mieszkaniu. Istnieje możliwość zakupu samego poddasza w połowie lub w całości na samodzielne mieszkania. Poddasze można zakupić w cenie 1.000 zł za metr kwadratowy w stanie tak zwanym surowym lub w stanie deweloperskim za cenę 2.700 zł za metr kwadratowy. Łącznie w obu budynkach powstanie 8 mieszkań oraz 2 poddasza. Mieszkania będą posiadały oddzielne liczniki na media i przewidziane jest ogrzewanie podłogowe na gaz. Każde mieszkanie składa się z salonu z aneksem kuchennym, 2 pokoi, sypialni, łazienki, w.c., kotłowni , wiatrołapu , taras.
Całość otoczenia będzie ogrodzona i zagospodarowana.
CENA a metr kwadratowy mieszkania na parterze : 3.790 zł
CENA za metr kwadratowy mieszkania na piętrze : 3.690 zł.




Treść niniejszego ogłoszenia nie stanowi oferty handlowej w rozumieniu Kodeksu Cywilnego, a dane w niej zawarte mają jedynie charakter informacyjny i mogą ulec zmianie

Osoba prowadząca

Grażyna Tchórzelska

Tel : 606 805 541
Licencja :

g.tchorzelska