Tarnów, ul.Mickiewicza 17/9
tel. 14 627 22 55, fax. 14 627 47 74

biuro@bochenek.com.pl
 

Mieszkania

Budynki

Lokale

Grunty

Nasze usługi







Newsletter


Typ   Nr   Woj   Miasto   Cena  

Oferta Nr 2121 Liczba odsłon: 107622

Wyślij zapytanie.                    


    Miejscowość : Pogórska Wola
    Dzielnica : CENTRUM
    Gmina : Skrzyszów
    Powiat : Tarnowski
    Województwo : małopolskie
    Transakcja : Sprzedaż
    Cena : 3 790 PLN
 

Szczegóły

  • Stan : Niezamieszkały
  • Rok budowy : 2021
  • Pow. całkowita : 0 m kw.
  • Pow. użytkowa : 0 m kw.
  • Stan : Developerski
  • Garaż; : Wolnostojący
  • Media : Prąd, Gaz, Wodociąg, Kanalizacja, Ogrzewanie, Ciepła woda
  • Rodzaj działki : Budowlana
  • Warunki zabudowy : tak
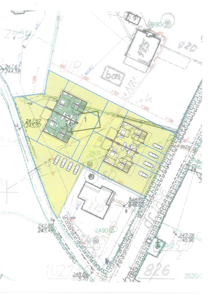
  • Kształt : Trójkąt
  • Ukształtowanie ter. : Płaskie
  • Ogrodzenie : tak
  • Otoczenie : Nieuciążliwe
  • Usytuowanie : Na wsi
  • Typ drogi : Gminna/miejska
  • Nawierzchnia : Asfalt/kostka
  • Komunikacja : Autobus

NA SPRZEDAŻ MIESZKANIA w BUDYNKACH typu BLIŻNIAK w stanie deweloperskim położone w Pogórskiej Woli. Wielkość mieszkań 91 m/kw. W segmencie dwa apartamenty plus poddasza .Możliwość łączenia apartamentów , strychu z apartamentem, w jedno mieszkanie. Każde mieszkanie składa się z trzech pokoi, kuchni, łazienki, przedpokoju , ma przewidziane ogrzewanie podłogowe i oddzielne media.
Zakup apartamentu w trakcie prac budowlanych pozwoli na dostosowanie wnętrz do indywidualnych gustów. Miejsca postojowe i ogródek do każdego mieszkania.
Nowoczesny projekt budynków , funkcjonalne rozplanowanie wnętrz.
Zapraszam do zapoznania się z tą ciekawą oferta i zobaczenia miejsca powstawania budynków
CENA za metr kwadratowy na parterze wynosi 3.790.00 pln
CENA za metr kwadratowy na piętrze wynosi 3.690.00 pln
CENA za metr kwadratowy strychu w stanie deweloperski wynosi 2.700.00 pln



Treść niniejszego ogłoszenia nie stanowi oferty handlowej w rozumieniu Kodeksu Cywilnego, a dane w niej zawarte mają jedynie charakter informacyjny i mogą ulec zmianie

Osoba prowadząca

Grażyna Tchórzelska

Tel : 606 805 541
Licencja :

g.tchorzelska